物件詳細情報PROPERTY INFORMATION
管理番号:rof368
| 賃料 | 462,000円 | 管理費/保険 | 40,000円/10,000円 |
|---|---|---|---|
| 敷金/礼金 | 2ヶ月/1ヶ月 | 仲介手数料 | − |
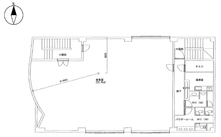
| 物件名 | 山形市宮町テナント | ||
|---|---|---|---|
| 形式 | 1フロアー | 専有面積 | 221.76u |
| 所在階/建物階 | 2階/3階建 | 建物構造 | RC造 |
| 築年月/完成予定 | 1994年(築32年) | ||
| 駐車場 | 1台 7,700円/台 | 交通手段 | 山交バス北駅角より徒歩約2分 |
| 引渡し日 | 相談 | 取引形態 | 貸主 |
| 設備など |
|
||
| その他 | 消費税込 WC・給湯共用(定期清掃有) 共用リフレッシュルーム有 全館禁煙 保証会社要加入 |
||
| オススメポイント | リフォームは相談 | ||
情報更新日/ 次回更新予定日/
写真をクリックすると拡大画像がご覧になれます。
※図面や画像と現況に相違がある場合は現況優先とします。
| 物件写真 | 間取り図 |
|---|---|
![]() |
|
| 地図 | |




お問い合わせ